Etude urbaine pour la valorisation conjointe de parcelles privatives et communales imbriquées
Etude 2016:
L’objectif de l’étude à l’initiative conjointe de la Ville d’ORSAY et des propriétaires privés est d’apporter une aide à la décision en appréciant l’opportunité d’une valorisation simultanée de deux propriétés adjacentes. Il s’agit d’analyser la compatibilité d’accueil d’un programme de logements dans le respect du site et des avoisinants.
Etude 2017 + offre :
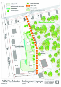
Les modifications réglementaires, proposées dans l’ étude fournie en 2016 , n’ayant pas été retenues par la Ville et le PLU approuvé le 28 mars 2017 n’étant pas susceptible d’évoluer, la volonté municipale de respecter les motivations initiales du classement du foncier en zone UHc, ce qui fondera la démarche de projet, avec une « morphologie pavillonnaire dominante »
Dans cet objectif, la proposition s’inscrit strictement dans le cadre de la zone UH c :
- Faible densité bâtie, soit < 400 m² de plancher et Tissu pavillonnaire de type individuel groupé
- Limitation des gabarits à R+combles et R+1
- Zone non aedificandi de 10 m / zone boisée classée en zone N. Recul de 5m / emprise publique – Marge inconstructible au-delà de 25 m
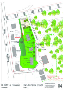
Au niveau urbain le projet finalise l’ilot qui s’épaissit légitimement à proximité du centre-ville dans le prolongement de la rue des Sources.
Un projet concerté au profit de toutes les parties, gage d’une insertion réussie : riverains, propriétaires du foncier non bâti , la ville et le quartier de La Boissière.
Une communauté d’habitants organisée autour d’un projet collectif :
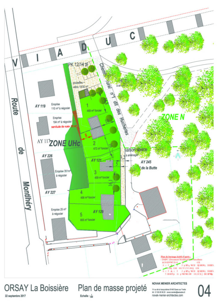
- découpage foncier homogène avec des parcelles de 459 à 655 m²
- typologie unitaire de logements: 5 entités de 80 m² de surface plancher chacune et agencement de logements duplex entre le 3 à 4 Pièces
- locaux mutualisés pour les vélos, poussettes, matériel d’entretien des espaces verts, poubelles
- Stationnement regroupé à l’entrée du site : 2 places par logement+ 2 places visiteurs à minima
- Liaison douce :
- Trajet piéton et 2 roues à l’usage des riverains de la rue des Sources, de la SCI de la Butte,
- Accès automobile occasionnel des 5 nouveaux logements
- Sécurisation des flux dissociés par rapport à la route de Montlhéry
Un programme adapté aux besoins de la population :
- En réponse au déficit constaté de 3 à 4 P pour les couples avec 1 à 2 jeunes enfants
- Un prix de vente ajusté à destination des jeunes couples
Une démarche paysagère au service d’un développement durable :
- Un quartier calme où les véhicules sont relégués en amont des espaces d’habitation
- Un apport de population à l’échelle de la rue des Sources limitant les situations conflictuelles de transit
- Une densité modérée (emprise bâtie < ou = 10%) valorisant les espaces libres
- Valorisation d’un espace de transition élargi entre domaine privé et espaces boisés classés :
- La zone non aedificandi aménagée collectivement accompagne la liaison douce du chemin des Hucheries
- Des haies bocagères limitent les jardins privatifs à l’alignement des façades
- Une faible imperméabilisation des surfaces en transition avec la zone N du bois :
- Mélange terre-pierre, dalles engazonnées – Aucun enrobé sur les parcelles – Recours au béton lavé sur le chemin des Hucheries
- Gestion des eaux pluviales
- au droit d’une noue drainante en fond de parcelles avec débit de rejet limité au réseau
- ru canalisé maintenu dans son tracé et sa configuration
- Des constructions saines: Double orientation Est Ouest pour tous les logements – Marges de 16 m autorisant des triples orientations
- Un chantier faiblement nuisant pour les riverains: avec voie de chantier éloignée du voisinage, sans grue ni engins de levage bruyant, réseau EU inchangé







